見学会
山口
【終了】
~
【山口市吉敷赤田】圧倒的に暮らしやすい3LDK完成見学会
| 場所 |
山口
山口県山口市吉敷赤田4丁目16付近
(MAP)
|
||
|---|---|---|---|
| 期間 |
【終了】 ~ |
時間 | 10:00~17:00 |
| 備考 | 11月16日・17日・18日・19日・22日・23日・24日の7日間限定 駐車場:あり | ||
圧倒的に暮らしやすい3LDKが
山口市吉敷赤田にNEW OPEN!!
11月16日・17日・18日・19日・22日・23日・24日の7日間限定で・・・
山口市吉敷赤田で住みやすいと好評の2階建て3LDKの見学会を開催します。
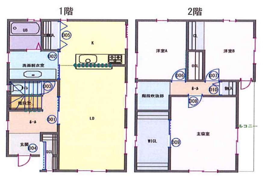
なぜ35坪の3LDKの2階建てでも圧倒的に暮らしやすいのか??
☆☆見どころ5つのポイント☆☆
①標準設備よりもワンサイズアップ
・リビングの掃き出し窓が、20㎝アップ
→採光・風通しが良くなり、開放的なリビングになります。
・バスルームの洗場スぺースが、20㎝アップ
→広いバスルームで日々の疲れに癒しをあたえます。
・玄関ドアの横幅が、5cmアップ
→シューズクロークもありますが玄関ドアを広くすると、
荷物もラクラク運べることが可能になります。
②オートロックの玄関ドア
鍵を取り出すことなく押しボタンや自動センサーなどで解錠ができ、
ドアが閉まると自動的に施錠されるので便利です。
③インナーバルコニー付き
テーブルや椅子をおくことによって半屋外の
プライベートな空間を作ることも可能です。
④階段下にあるトイレ収納
デッドスペースになりがちな階段下をトイレ収納に
することによって、スペースを有効活用できます。
⑤アップグレードしたIHキッチン
標準設備より15万円もアップグレードした
こだわりのIHキッチンをぜひご覧下さい。
イエテラスなら低価格で新築一戸建てを実現します。
まずはお気軽に見学会へ足をお運びください!!
7日間限定でのオープンハウスとなります!
地図はこちら
さらに!!
☆☆イベント来場予約の特別特典☆☆
先着5組様限定で1000円のところが・・・
2000円分プレゼント!!
ぜひこの機会にご来場下さい。
また、お客様からのGoogle口コミ評価を
『☆4.8』の評価をいただいております。
嬉しいお声ををたくさんいただいております。
お客様からの口コミ内容は、こちら
参考だけでもご相談がしたい方是非一度ご来場ください!
無理な押し売りが一切致しませんので、安心してご来場下さいませ。
下のイベント申込フォームからご予約を宜しくお願いします。
興味を持った方は‟今すぐご予約を!”
山口県山口市吉敷赤田4丁目16付近
お客様とのお約束
一切押し売りをせず、
お客様のご要望をお伺いし
丁寧にご案内させて頂きます。

お子様がいても安心
キッズコーナー

何でも聞ける
相談スペース
お子様連れのお客様も
ご安心してご来場ください。
ご安心してご来場ください。




