見学会
周南
【終了】
【周南市】こんな機会2度とない!見ないと損な贅沢平屋3LDK
| 場所 |
周南
周南市大字久米旭ヶ丘
|
||
|---|---|---|---|
| 期間 |
【終了】 ~ |
時間 | 10:00~17:00 |
| 備考 | 駐車場:あり 店休日:水、木 | ||
こんな機会2度とない!
\見ないと損!/
お施主様邸見学会
---------------------------------
♦開催期間:2023年3月18日(土)~3月26日(日)
※(水)・(木)は店休日です。
♦開催場所:山口県周南市大字久米旭ヶ丘付近
※場所の詳細は予約後にメールにてお送りします。
--------------------------------
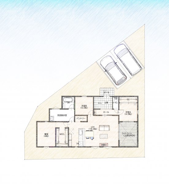
贅沢な平屋3LDK
三角地を上手く活用した
お施主様邸見学会を
7日間限定 で開催します!
見ないと損な見学会です
なんと今回は特別に図面を大公開!
図面は下へスクロールで見れます。
人気の要望がぎゅっと詰まったお客様邸が
期間限定で公開されます!
まずは、今の間取りには欠かせない
大容量の"ウォークインクローゼット"に"パントリー"で
収納に困ることはありません!

さらに、コロナ渦で要望が急増した
"ただいま手洗いスペース"

そして家をより、やすらぎの空間にするための
"中庭(ライトコート)"も!!

気になる図面はこちら!

三角地を上手く活用し、
無駄のない配置計画
現地で見るとまた違った一面が見れる!?
さらに!
前日までのご予約の上、ご来場で
QUOカード5,000円分プレゼント!
さらにさらに…
web予約限定!予約フォームで
事前アンケートを全て回答すると
+3,000円分プレゼント!

合計8,000円分‼
今だけのチャンスです!
(*´▽`*)
家も!土地も!
周南エリアの未公開物件もご紹介!
実績多数の いえとち本舗
見るだけ!聞くだけでもOKです!
低価格×高品質の圧倒的コストパフォーマンスの
新築住宅をぜひこの機会にご見学下さい
沢山のご来場
お待ちしていま~す‼

お客様とのお約束
一切押し売りをせず、
お客様のご要望をお伺いし
丁寧にご案内させて頂きます。


ご安心してご来場ください。
