見学会
山口
【開催直前】
【防府市開出本町】18帖LDKと大容量FCL!家事ラク動線とゆとりの広さを両立した「賢い2階建て」販売会
| 場所 | 防府市開出本町1972番9 (MAP) | 時間 | 10:00~17:00 |
|---|---|---|---|
| 期間 |
【開催直前】 ~ |
備考 | 駐車場:あり 定休日:水、木曜日 |

新築住宅販売会
防府市開出本町 2,230万円
家族のゆとりをデザインした、18帖LDKと充実収納の家
18帖の大空間LDKと機能的な収納計画。
日々の心地よさを追求した、こだわりの3LDK。
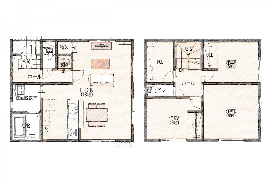
物件の間取り(3LDK+FCL)

1階に18帖の広々LDK、2階に大型のファミリークローゼットを集約
この建物の見どころ

家族が自然と集まる、18帖の大空間LDK
1階のメインスペースには、ゆとりある18帖のLDKを確保しました。対面式キッチンからはリビング全体が見渡せ、家族の様子を見守りながら料理ができる、開放感あふれる空間デザインです。

家の中をスッキリ保つ「ファミリークローゼット」
2階ホールには、家族全員で共有できる大容量のファミリークローゼット(FCL)を設置しました。各部屋の収納に加え、共有の収納スペースがあることで、居住空間をより広く、美しく保つことができます。

ゆとりある広さを確保した、8帖の主寝室
2階の主寝室には、プライベートな時間をゆったり過ごせる8帖の広さを確保しました。大型のクローゼットも併設されており、家具を置いても十分な余裕がある、心地よい眠りのためのプライベート空間です。
※画像はすべてイメージです。
物件概要
| 所在地 | 山口県防府市開出本町 |
| 販売価格 | 2,230万円 |
| 間取り | 3LDK+FCL |
| 建物 | 新築2階建て |
周辺環境
\ 事前予約がお得! /

WEB予約+条件達成で特典最大30,000円分プレゼント!
※初めてのご来場など諸条件がございます。
家づくりをご検討中の皆さまへ
昨今、ナフサ価格の変動により不安を感じていらっしゃる方も多いのではないでしょうか。私たちいえとち本舗は、正確な情報と誠意をもって皆さまの家づくりに向き合います。どうぞ安心してご相談ください。

お客様とのお約束
一切押し売りをせず、
お客様のご要望をお伺いし
丁寧にご案内させて頂きます。


ご安心してご来場ください。
ご来場特典の進呈条件
下記の進呈条件を必ずお読みください。
- ・第一、第二希望日、希望時間は必ずお選びください。
-
・事前に来場時間などについてご連絡ができるお客様に限り特典をお渡しいたします。
当日のご来場、および前日18時以降における翌日のご来場につきましては、WEB上では予約受付をしておりません。 - ・イベントのご予約状況により、ご希望に添えない場合がございます。
- ・お家づくりを真剣に検討していると担当スタッフが判断した場合に限り特典をお渡しいたします。
- ・弊社に初めてご来場、アンケートにご協力いただいた1家族1名様に限り進呈いたします。
- ・弊社施工可能エリアにて、マイホームの建築をご検討されている方。
-
・事前アンケートの特典は、回答メールがお客様に届いている方のみとさせていただきます。
メールが弊社より届いているかご確認をお願いいたします。 - ※すべての条件を満たした方限定の来場特典となります
- ※担当者からお電話をさせていただき、日程の調節ができた時点で予約の確定とさせていただきます。
- ※当キャンペーンは予告なく終了する場合がございます。
イベント参加申し込みフォーム
- ・必須は記入必須項目ですので、必ずご記入ください。
- ・メールアドレスは正しくご入力下さい。(弊社より返信メールが届きません。)
- ・半角カナ入力は文字化けの原因となりますので使用しないでください。
- ・データを送信される際の情報はSSL暗号化通信により保護されますので安心してご利用ください。
- 必要項目を
入力 - 入力内容を
確認 - 送信
完了




