見学会
山口
【終了】
~
【山口市大内矢田南】ついに100㎡超!冗談じゃないくらいデカい平屋
| 場所 | 山口市大内矢田南6丁目1 (MAP) | 時間 | 10:00~17:00 |
|---|---|---|---|
| 期間 |
【終了】 ~ |
備考 | 駐車場:3台可 ※20日(水)・21日(木)は、店休日です。 |
ついに、100㎡を超えた!
冗談じゃないくらいデカい平屋OPEN
この7日間でしか見られません!!--------------------------------------------------------------------
♦開催期間:2020年5月16日(土)~5月24日(日)
(※20日(水)・21日(木)は店休日です。)
♦開催場所:山口県山口市大内矢田南6丁目1(MAP)
♦ご自宅のPC・スマホを使ってオンラインで見学対応可能
ご自宅でモデルハウスを見学されたい場合は、
下記のご予約フォームの備考欄に『WEBお家見学を希望』と追記してください。
--------------------------------------------------------------------
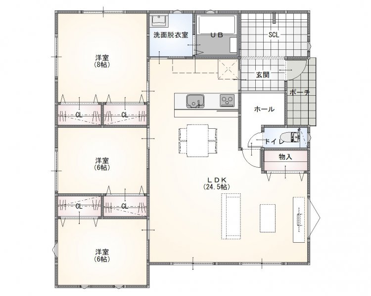
★各部屋がでかい!・・・いや、デカい!
★玄関から直行できる部屋が魅力的!
★うわ!広っ!リビング20帖!
圧倒的広さを感じられる平屋4LDKです!
まだまだ推したいポイントはあります。
ぜひ見て、広さを体感してください(^^)/
前日までにご予約頂くとさらにお得!!
ホームページで見学予約を頂いたお客様に
2,000円分のQUOカードプレゼント!!
聞くだけ!見るだけでもOKです。
【コロナ対策】安心安全な見学会
いえとち本舗でも各モデルハウスにおいて感染防止対策に努めて参ります。
◆定期的なモデルハウス内の除菌・換気
◆手指消毒液の設置
◆ご案内は全て手袋着用
◆スリッパは使わずに靴下をご用意
(ちなみに靴下はプレゼント致します。)
◆スタッフは全員マスクをつけてご案内
◆ご予約優先でのご案内
一度にご来場いただけるのは1組様のみです。
ご予約なしの来場の場合は、入室まで少しお待ち頂く場合もございます。
平日もご予約を承っております!
感染防止に努め、モデルハウスの環境を整えて皆様のご来場をお待ちしております。
安全なご案内の為、ぜひご予約フォームからご希望の日時をご予約下さい。
皆様のご参加を楽しみにお待ちしております。
↓ご予約は簡単30秒↓
お客様とのお約束
一切押し売りをせず、
お客様のご要望をお伺いし
丁寧にご案内させて頂きます。

お子様がいても安心
キッズコーナー

何でも聞ける
相談スペース
お子様連れのお客様も
ご安心してご来場ください。
ご安心してご来場ください。




