見学会
長門
【開催前】
~
【長門市】土日限定開催!“暮らしを体感する”2階建て見学会|ライトコート×サウナのある家
| 場所 | 長門市東深川297-1 | 時間 | 10:00~17:00 |
|---|---|---|---|
| 期間 |
【開催前】 ~ |
備考 | 駐車場:あり ※土日のみ開催 |
分譲見学会/実物公開
【長門市 東深川】
4LDK分譲見学会
サウナ・ライトコート・21.5帖LDKなど見どころ満載!
\ぜひ現地でご体感ください!/
\ぜひ現地でご体感ください!/

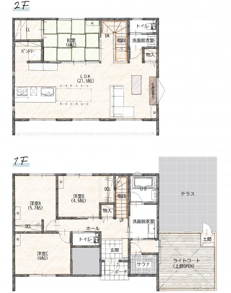
公開物件の間取り

2階に21.5帖LDKの珍しい間取り!
この物件の特徴
サウナ好き必見!本格サウナ!
「セルフロウリュもできるプライベートサウナ」

海が一望できるフルフラットキッチン
「料理しながら長門自慢のオーシャンビュー」

BBQもできる広々ライトコート
「ライトアップもされる最高空間」

その他実際の物件写真




見学会のポイント
今回は長門市にある大人気モデルハウスを大公開!
間取りや設備はもちろん、日当たり・風通し・外構まで「リアルな暮らし」を体感できます。
- 実際の物件見学で生活をイメージ!
- ローン返済の目安などをその場で相談可能
概要
1/17㈯18㈰・24㈯25㈰・31㈯1㈰
(土日限定開催)
(土日限定開催)
10:00〜17:00
長門市東深川297-1
事前予約等の条件達成で 最大30,000円分 のQUOカードをプレゼント!
完全予約制となります。まずはご希望日時でご予約ください。
1
ご挨拶・物件のポイント共有
間取りの意図や見どころ(SCLや家事動線など)を先に共有します。
2
室内見学
家具配置・収納位置・採光を実寸で確認。写真撮影はスタッフにご相談ください。
3
資金計画・土地のご相談
総額と月々のバランス比較。非公開の土地情報もご紹介可能です。
4
次回アクションのご案内
プラン打合せ・別物件の見学予約・事前審査などご希望に合わせてご提案します。
※所要はご相談内容によって前後します。お時間に余裕を持ってご予約ください。
特典
今なら、事前予約+ご来場で
QUOカード最大30,000円分!
QUOカード最大30,000円分!
合計最大:30,000円分
-
ご予約&ご来場 15,000円分
-
事前アンケートをすべてご記入 +5,000円分
-
顔つき身分証明書のご提示 +5,000円分
-
事前審査のご提出 +5,000円分
※必ず予約フォーム下の進呈条件をご確認ください。条件・内容は予告なく変更となる場合があります。
※進呈には所定の条件達成および当社規定の確認が必要です。
※進呈には所定の条件達成および当社規定の確認が必要です。
お客様とのお約束
一切押し売りをせず、
お客様のご要望をお伺いし
丁寧にご案内させて頂きます。

お子様がいても安心
キッズコーナー

何でも聞ける
相談スペース
お子様連れのお客様も
ご安心してご来場ください。
ご安心してご来場ください。
ご来場特典の進呈条件
下記の進呈条件を必ずお読みください。
- ・第一、第二希望日、希望時間は必ずお選びください。
-
・事前に来場時間などについてご連絡ができるお客様に限り特典をお渡しいたします。
当日のご来場、および前日18時以降における翌日のご来場につきましては、WEB上では予約受付をしておりません。 - ・イベントのご予約状況により、ご希望に添えない場合がございます。
- ・お家づくりを真剣に検討していると担当スタッフが判断した場合に限り特典をお渡しいたします。
- ・弊社に初めてご来場、アンケートにご協力いただいた1家族1名様に限り進呈いたします。
- ・弊社施工可能エリアにて、マイホームの建築をご検討されている方。
-
・事前アンケートの特典は、回答メールがお客様に届いている方のみとさせていただきます。
メールが弊社より届いているかご確認をお願いいたします。 - ※すべての条件を満たした方限定の来場特典となります
- ※担当者からお電話をさせていただき、日程の調節ができた時点で予約の確定とさせていただきます。
- ※当キャンペーンは予告なく終了する場合がございます。
イベント参加申し込みフォーム
- ・必須は記入必須項目ですので、必ずご記入ください。
- ・メールアドレスは正しくご入力下さい。(弊社より返信メールが届きません。)
- ・半角カナ入力は文字化けの原因となりますので使用しないでください。
- ・データを送信される際の情報はSSL暗号化通信により保護されますので安心してご利用ください。
- 必要項目を
入力 - 入力内容を
確認 - 送信
完了




