見学会
長門
【終了】
~
【長門市】“暮らしを体感する”2階建て見学会|ライトコート×サウナのある家
| 場所 | 長門市東深川297-1 | 時間 | 10:00~17:00 |
|---|---|---|---|
| 期間 |
【終了】 ~ |
備考 | 駐車場:あり ※土日のみ開催 |
分譲見学会/実物公開
【長門市 東深川】
4LDK分譲見学会
サウナ・ライトコート・21.5帖LDKなど見どころ満載!
\ぜひ現地でご体感ください!/
\ぜひ現地でご体感ください!/

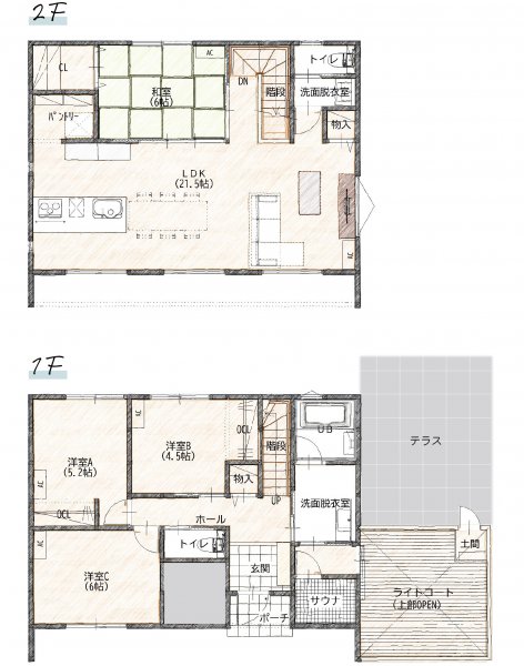
公開物件の間取り

2階に21.5帖LDKの珍しい間取り!
この物件の特徴
サウナ好き必見!本格サウナ!
「セルフロウリュもできるプライベートサウナ」

海が一望できるフルフラットキッチン
「料理しながら長門自慢のオーシャンビュー」

BBQもできる広々ライトコート
「ライトアップもされる最高空間」

その他実際の物件写真




見学会のポイント
今回は長門市にある大人気モデルハウスを大公開!
間取りや設備はもちろん、日当たり・風通し・外構まで「リアルな暮らし」を体感できます。
- 実際の物件見学で生活をイメージ!
- ローン返済の目安などをその場で相談可能
概要
11/8㈯9㈰・15㈯16㈰・22㈯23㈰
(土日限定開催)
(土日限定開催)
10:00〜18:00
長門市東深川297-1
事前予約等の条件達成で 最大30,000円分 のQUOカードをプレゼント!
完全予約制となります。まずはご希望日時でご予約ください。
1
ご挨拶・物件のポイント共有
間取りの意図や見どころ(SCLや家事動線など)を先に共有します。
2
室内見学
家具配置・収納位置・採光を実寸で確認。写真撮影はスタッフにご相談ください。
3
資金計画・土地のご相談
総額と月々のバランス比較。非公開の土地情報もご紹介可能です。
4
次回アクションのご案内
プラン打合せ・別物件の見学予約・事前審査などご希望に合わせてご提案します。
※所要はご相談内容によって前後します。お時間に余裕を持ってご予約ください。
特典
今なら、事前予約+ご来場で
QUOカード最大30,000円分!
QUOカード最大30,000円分!
合計最大:30,000円分
-
ご予約&ご来場 15,000円分
-
事前アンケートをすべてご記入 +5,000円分
-
顔つき身分証明書のご提示 +5,000円分
-
事前審査のご提出 +5,000円分
※必ず予約フォーム下の進呈条件をご確認ください。条件・内容は予告なく変更となる場合があります。
※進呈には所定の条件達成および当社規定の確認が必要です。
※進呈には所定の条件達成および当社規定の確認が必要です。
お客様とのお約束
一切押し売りをせず、
お客様のご要望をお伺いし
丁寧にご案内させて頂きます。

お子様がいても安心
キッズコーナー

何でも聞ける
相談スペース
お子様連れのお客様も
ご安心してご来場ください。
ご安心してご来場ください。




