見学会
山口
【終了】
~
【防府市 開出本町】暮らしを体感できる住まい見学会|山口中央店
| 場所 |
山口
防府市開出本町11-28
(MAP)
|
||
|---|---|---|---|
| 期間 |
【終了】 ~ |
時間 | 10:00~17:00 |
| 備考 | 駐車場:あり 定休日:水、木曜日 | ||
見学会/完全予約制
【防府市 開出本町】
住み心地“体感”見学会
間取り・動線・収納を実寸で。
暮らしのリアルが分かる3LDK・2階建
暮らしのリアルが分かる3LDK・2階建

1
18帖LDKの“広さ”と“会話のしやすさ”を実感
2
SCL・WIC・パントリーなど“片付く収納”をチェック
3
洗面→ランドリー→WICの“家事ラク動線”を体験
事前予約&ご来場アンケート等の諸条件達成で、最大 30,000円分 のQUOカードをプレゼント!
※詳細条件は店舗にてご確認ください。
※他社問わず、家づくりをご検討の方・初めてアンケートにご協力いただいた方に進呈。
※同時刻に複数のグループでご来場の場合は1組様分。
※顔写真付きの身分証明書のご提示が必要です。
住まいDATA
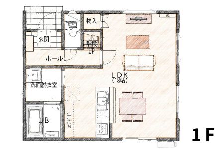
間取り
3LDK(2階建)/LDK18帖
収納
WIC・FCL
建物面積
91.08m²
敷地・駐車
敷地約249.84m²
駐車3台可
駐車3台可
所在地
防府市 開出本町
※住まいDATAの数値は提供資料に基づきます。
こんな方におすすめです!
- “広さ・採光・抜け感”を体で確かめたい
- 片付く収納と家事ラク動線が知りたい
- 標準仕様の性能や設備を具体的に知りたい
- 周辺環境や生活利便性もチェックしたい
見どころ
図面では分かりづらいサイズ感・動線・収納の使い勝手を、実寸で確認できます。太陽光発電のある暮らしや窓の抜け、外構計画まで“日常目線”でチェック。
- 18帖LDK×対面キッチンで会話も家事もスムーズ
- FCL/WICで“出し入れしやすい”収納計画
- 昼間の電気代対策にうれしい太陽光発電(標準搭載)
開催概要
■
開催期間:9/13(土)〜9/28(日)(水・木は店休日)
■
10:00〜17:00
■
会場:防府市 開出本町
■
事前予約等の条件達成で 最大30,000円分 のQUOカードをプレゼント!
完全予約制でゆったりご見学いただけます。まずはご希望日時でご予約ください。
※室内では手袋・靴下の着用にご協力ください。
※小さなお子さまは保護者さまと一緒にご見学ください。
※掲載内容・特典は予告なく変更になる場合があります。
※小さなお子さまは保護者さまと一緒にご見学ください。
※掲載内容・特典は予告なく変更になる場合があります。
《QUOカードの進呈について》
※他社問わず、家づくりをご検討の方・初めてアンケートにご協力いただいた方に進呈。
※同時刻に複数のグループでご来場の場合は1組様分。
※顔写真付きの身分証明書のご提示が必要です。
※他社問わず、家づくりをご検討の方・初めてアンケートにご協力いただいた方に進呈。
※同時刻に複数のグループでご来場の場合は1組様分。
※顔写真付きの身分証明書のご提示が必要です。
周辺環境
- セブンイレブン防府開出西町店 … 徒歩6分(約419m)
- ユアーズ・バリュー仁井令店 … 徒歩9分(約646m)
- ワークマン防府店 … 徒歩5分(約340m)
- ナフコ 防府店 … 徒歩6分(約444m)
- 防府市立華城小学校 … 徒歩17分(約1338m)
- 防府市立桑山中学校 … 徒歩24分(約1886m)
1
ご挨拶・物件のポイント共有
間取りの意図や見どころ(SCLや家事動線など)を先に共有します。
2
室内見学
家具配置・収納位置・採光を実寸で確認。
3
資金計画・土地のご相談
総額と月々のバランス比較。非公開の土地情報もご紹介可能です。
4
次回アクションのご案内
プラン打合せ・別物件の見学予約・事前審査などご希望に合わせてご提案します。
※所要はご相談内容によって前後します。お時間に余裕を持ってご予約ください。
月々3万円で叶える
「憧れ」「快適」「お得」
のプレミアムコンパクトハウス
イエテラス
家賃並みで実現する、G2グレード標準の
次世代スマートハウス
平屋 1,738万円〜 / 2階建 1,672万円〜
イエスタ
設計士が考え抜いた完成された間取りで
完全規格型の新築住宅
平屋 1,243万円〜 / 2階建 1,738万円〜
イエミライ
蓄電池搭載の
未来志向の省エネルギー住宅
平屋 1,477万円〜 / 2階建 1,733万円〜
特典
今なら、事前予約+ご来場で
QUOカード最大30,000円分プレゼント!
QUOカード最大30,000円分プレゼント!
合計最大:30,000円分
-
ご予約&ご来場 15,000円分
-
事前アンケートをすべてご記入 +5,000円分
-
顔写真つき身分証明書のご提示 +5,000円分
-
事前審査のご提出 +5,000円分
※必ず予約フォーム下の進呈条件をご確認ください。条件・内容は予告なく変更となる場合があります。
※進呈には所定の条件達成および当社規定の確認が必要です。
※進呈には所定の条件達成および当社規定の確認が必要です。
お客様とのお約束
一切押し売りをせず、
お客様のご要望をお伺いし
丁寧にご案内させて頂きます。

お子様がいても安心
キッズコーナー

何でも聞ける
相談スペース
お子様連れのお客様も
ご安心してご来場ください。
ご安心してご来場ください。








